台州房地产网 > 台州二手房
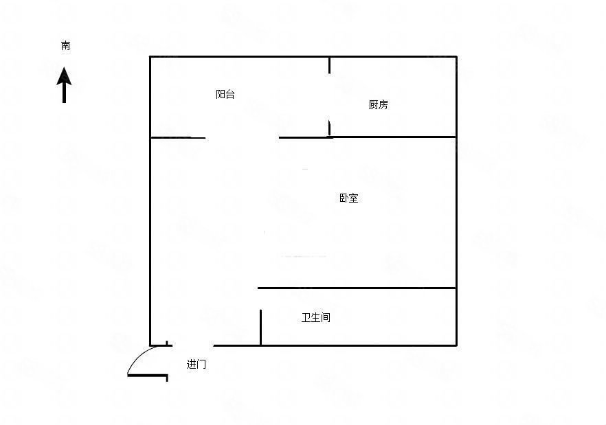
    锦江百货海悦公寓高层1室1厅1卫45㎡
    浏览:人次 2022/7/5 14:12:04
  • 建筑面积:
  • 45㎡
  • 户型:1室1厅1卫
  • 房产类型:
  • 高层
  • 朝向:南
  • 总 层 次:
  • 18层
  • 层次:中层
  • 建造时间:
  • 待核查
  • 装修:精装修
  • 土地性质:
  • 商品房,70年产权
  • 证件:满二年
  • 占地面积:
  • 待测量
  • 车库:待查待测
  • 所属小学:
  • 未知
  • 中学:未知
  • 方位:
  • 锦江百货
  • 地址:
  • 未登记
    配套设施

物业类型:普通住宅

    周边环境

暂无介绍

    详细描述

联系方式:房金眼房产经纪海悦店吴岳飞,13105694444,1:欢迎光临我的网上店铺、更多房源请点击我的图像进入我的房源库、每天有不同的新房源,如果我不能及时回复你的信息、请您致电联系我、及时关注我的号。
业主诚心出售、方式可谈、看房方便。此价格有效期15天、业主报价可能会随时变动,以业主报价为准。如此房源不满意,请点击我的图片或直接联系我,本人会为你匹配更好的小区和更有性价比高的、更适合你。在此祝您身体健康、工作顺利!!!(税费解析)1:契税90平以下首套房及二套1%,90平以上首套房1.5%、二套2%、三套及以上3%.2:个税1%。3:营业税房产证满二年免营业税、二年内收全额的5.3%

(联系时请说明来自《台州房地产网》

    同区位房
    同价位房
    精彩推荐
关于我们 | 免责声明 | 联系我们 | 视频中心
Copyright © 台州房地产网 浙ICP备2024070870号-1 浙ICP备2024070870号-2 浙ICP备2025151442号-4 All Rights Reserved
技术支持 台州通联网络-台州网站建设-网页设计